Description
It is located on the first floor and has one parking space at the garage entrance with an area of 14 m²
The building has an elevator, equipped with modern security systems, and it’s construction was completed in mid-2023.
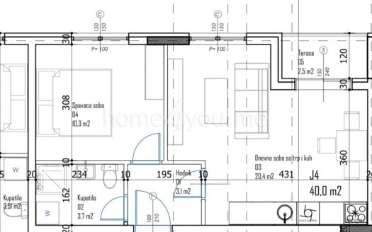
This modernly equipped apartment covers 39 m² and features one spacious bedroom with a double bed and a built-in wardrobe. The bedroom has access to a balcony, which is also accessible from the living room. The balcony is south-facing and offers a stunning view of coniferous and deciduous forests.
The apartment is, among other features, equipped with underfloor heating (in the bathroom and hallway), large windows, and glass doors that provide plenty of natural light, making the space bright and comfortable.
Location: 400 m from the center, in place Mekića Polje, between street
Boška Rašovića and Milivoja Bulatovića, on the road from the city center to the Kolašin 1450 and Kolašin 1600 ski centers.








